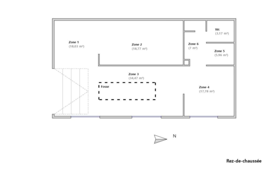
Situé sur les hauteurs de POISY-BRASILLY, à 10 min de l'accès péage Nord, dans un cadre résidentiel d'habitations, vaste local à l'état brut de 105.18 m² comprenant : un grand espace non cloisonné avec de grands ouvertures vitrées, un espace bureau, un cabinet de toilette.
En annexes : deux places de stationnements.
Activités bruyantes ou odorantes non autorisées
Non équipé d'un système de chauffage
Eau chaude avec cumulus électrique.
Loyer : 984.14 € / mois HT
Honoraires : 2 126 €
Disponible au 04/04/2026
Consommation énergie primaire : Non communiquée.
Consommation énergie finale : Non communiquée.
Les informations sur les risques auxquels ce bien est exposé sont disponibles sur le site Géorisques :www.georisques.gouv.fr






